ID CP1737277

CASA DUPLEX | P+1+Pod | 123mp + POD 45mp | teren 654mp | Chinteni

Această proprietate nu mai este activă,
te invităm să vizualizezi proprietăți similare

ID CP1737277

149,000 € (negociabil) TVA inclus

Casă / Vilă cu 4 camere de vânzare
Chinteni
123 mp
2022

#alvernaimobiliare (ID: ALV1737277)

Va propunem spre cumparare casa de tip duplex cu 654mp teren, situata in Chinteni, judetul Cluj.

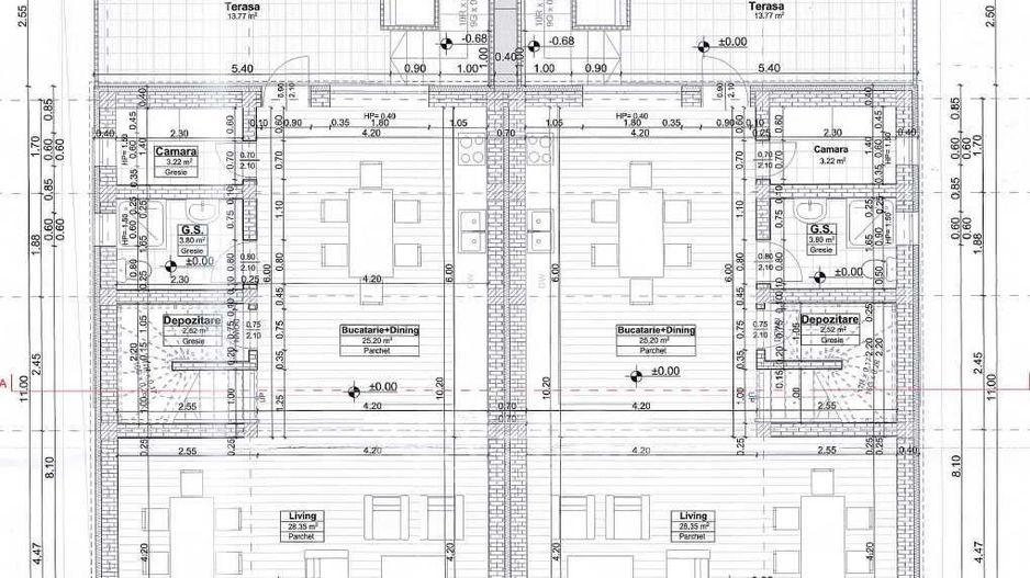
Structurata pe 2 niveluri, dispune de o suprafata utila de 123mp + POD 45mp, fiind compartimentata astfel:

Parter: living, bucatarie cu zona de dining, camara, baie, spatiu depozitare si o terasa de aprox 14mp

Etaj: 3 dormitoare, baie, hol

Pod: spatiu depozitare 45mp

Constructia este realizata din caaramida Cemacon, acoperis cu tigla ceramica, termoizolatie de 10cm, de asemenea dispune de parcare pavata, aproximativ 55mp in fata imobilului.

Se preda in stadiu semifinisat, cu instalatii sanitare si electrice la pozitie, un strat de glet, usa la intrare montata, ferestre cu tamplarie Salamander - gri antracit si geamuri tripan cu feronerie Roto NX Titan, iar incalzirea este prevazuta prin centrala termica proprie cu distributie in pardoseala.

In momentul actual se poate opta pentru un pret mai accesibil, nefiind inca montata centrala termica si instalatia in pardoseala.

Pentru mai multe informatii sau pentru a stabili o vizionare va rugam sa ne contactati.

#alvernaimobiliare (ID: ALV1737277)

Indicatori de performanta energetica:

Clasa energetica: -

Consumul total specific de energie primara: - [kWh/m2an]

Indicele de emisii echivalent CO2: - [kgCO2/m2an]

Consumul total specific de energie din surse regenerabile: -

Citește mai mult

  • Număr camere
    4
  • Dormitoare
    3
  • Număr bucătării
    1
  • Număr băi
    2
  • Geam la baie
    Da
  • Număr balcoane
    1
  • Număr terase
    1
  • Număr locuri parcare
    2
  • Disponibilitate
    Imediat
  • Tip casă
    Duplex
  • Stare interior
    Semifinisat
  • Suprafață utilă
    123 mp
  • Suprafață construită
    145 mp
  • Suprafață construită la sol (Amprentă)
    100 mp
  • Suprafață teren
    654 mp
  • Suprafață curte
    553 mp
  • Suprafață curte liberă
    553 mp
  • Deschidere
    11 m
  • Acoperiș
    Țiglă
  • Stadiu construcție
    Finalizată
  • An construcție
    2022
  • Construcție nouă
    Da
  • Tip construcție
    Cărămidă
  • Număr etaje clădire
    1

Facilități

Apă
Apometre
Bucătărie deschisă
Canalizare
CATV
Centrală proprie
Contor electric
Contor gaz
Curent
Curte
Ferestre care se deschid
Ferestre PVC
Gaz
Geamuri tripan
Grădină proprie
Iluminat stradal
Încălzire prin pardoseală
Internet
Izolație exterioară
Mijloace de transport în comun
Nemobilat
Șapă
Străzi asfaltate
Telefon
Ușă intrare metal
Vedere panoramică
Necesare:

Site-ul nu poate funcționa corect fără aceste cookie-uri. Vezi cookie-urile

Statistică:

Strângem statistici anonime despre voi, vizitatorii unici, pentru a vă îmbunătăți experiența dumneavoastră. Vezi cookie-urile

Marketing:

Pentru a ne promova mai eficient serviciile noastre, folosim cookies pentru a vă identifica și a vă oferi proprietăți și servicii personalizate. Vezi cookie-urile

Acest site folosește cookies, află detalii. Alege ce tipuri de cookies dorești să permitem: